Private House, Patcham

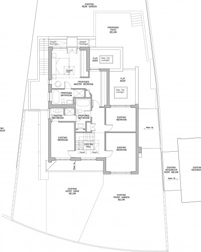
This two-storey detached house in Patcham profits from a large two-storey rear extension.

The forms are broken down into smaller structures of die rent heights and set back in a stepped arrangement in plan to follow the natural contours of the landscape and are placed in respect to the neighbouring houses to both sides.

Cam1 v03
Cam2 v03
Cam3 v03
Proposed First a Model
Proposed Ground Model

Related projects